
ほったらかし見学会とは?
その名の通り、営業担当が付き添わず『ほったらかし』で
ゆっくりご覧いただけるモデルハウス見学会です。
-
営業・接客なし
まだ家を建てる予定はないけれど、とりあえずモデルハウスを見てみたい!そんな方にもおすすめです。
-
写真撮影OK
モデルハウス内の写真撮影も自由。いくつかモデルハウスを見学して検討したい時、気になる箇所やお気に入りポイントなどなど撮影ください。
-
完全予約制
見学は1組様ずつの完全予約制。どんな暮らしがしたいか想像しながら、1時間たっぷり、ごゆっくりとご見学ください。

ご見学いただけるモデルハウスについて
広谷モデルハウス
- 所在地:
- 岡山県岡山市東区広谷628-3
- 1階床面積:
- 61.69㎡(18.66坪)
- 2階床面積:
- 62.62㎡(18.91坪)
- 延べ床面積:
- 124.21㎡(37.57坪)
- 敷地面積:
- 192.48㎡(58.22坪)


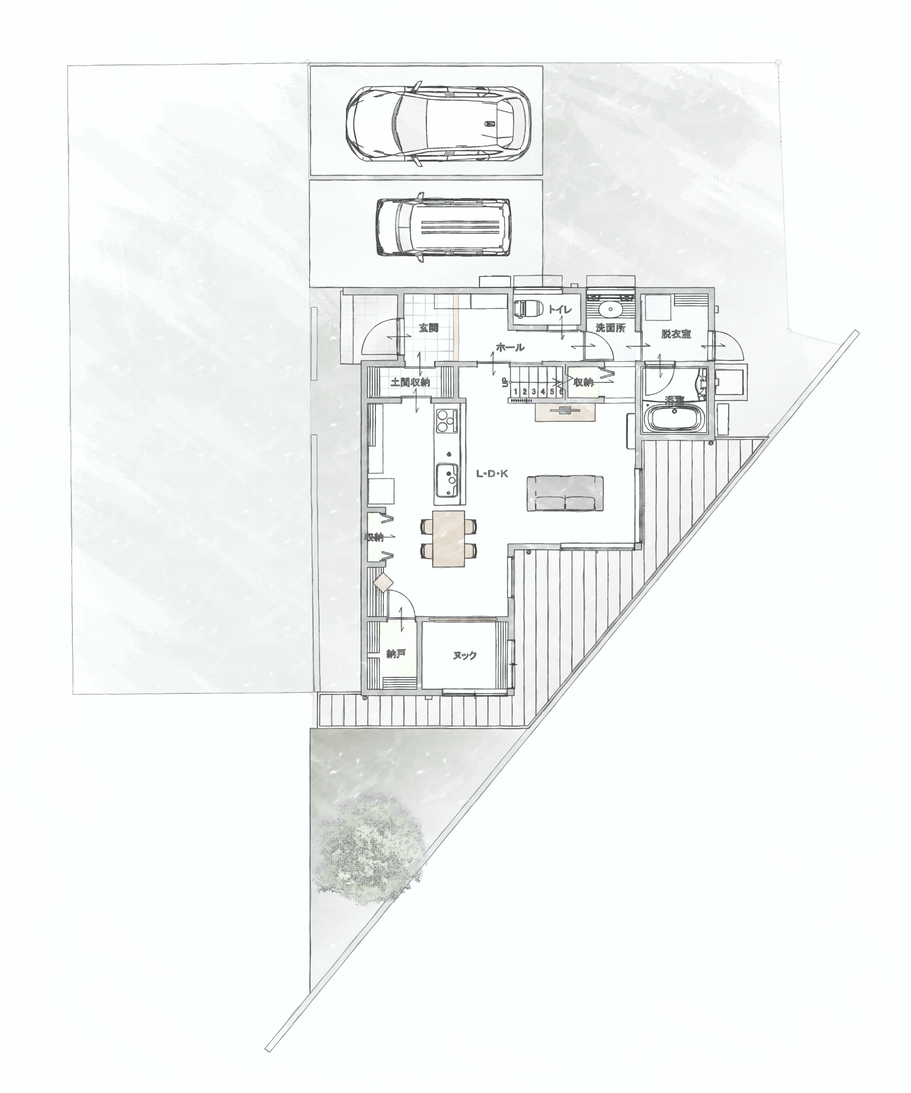
キッチンからは広いリビングを見渡すことできます。
家族が同じ空間にいながら、それぞれ好きなことができる暮らし。
開放感ある2階建てのモデルハウスです。

ご見学のポイント

ワイドスパンの大空間
開放感あふれる天上高2m65㎝、20帖以上の広々空間。
木と鉄を組み合わせたテクノストラクチャー工法だから柱のない開放感を実現しています。

川を眺められるヌック
小上がり空間で、篭り部屋のようなヌック。お子様を遊ばせたり、一人でゆっくりしたい時や、集中したい時に最適。

安心と快適を叶える
デザイン住宅
住まいとしてのデザインはもちろん、耐震等級3・ZEH以上の断熱性能も兼ね備えた暮らしを実現できます。


安心と快適を叶える
デザイン住宅
住まいとしてのデザインはもちろん、耐震等級3・ZEH以上の断熱性能も兼ね備えた暮らしを実現できます。
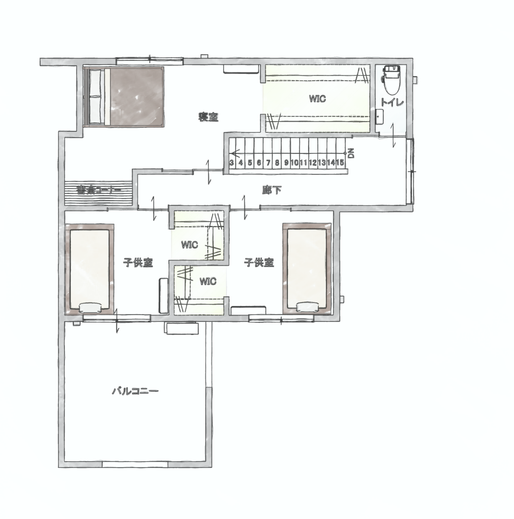
間取り



倉敷ハウジングの特長
大手ハウスメーカーと同等以上の高性能住宅が得意です。
1.パナソニック製品を主軸とした充実の設備
当社はパナソニックビルダーズグループ加入店。Panasonic商品を主軸に、LIXIL、Takarastandardなど、高性能・高品質のメーカー品を取り揃えています。品質の高い製品を、少しでもリーズナブルにご提案いたします。



2.地震に強い!テクノストラクチャー工法を採用
木の弱点を鉄の強さで補強したオリジナル部材「テクノビーム」を使用することで、長年の骨組み全体のゆがみがおさえられます。さらに地震などの一時的にかかる大きな力に強い家を実現しています!

3.半永久的に家を守る「セルロースファイバー」
繊維系の断熱材は劣化に強く、その寿命は再建築時にも再利用できるほど半永久的。また、「低い熱伝導率」と「隙間が無く施工」を併せ持ち、高い断熱性能を確保するのにもうってつけの素材です。

ご見学の流れ
1.ご予約
ご予約フォームから
見学日をご予約ください。
追って、ご予約日確定のご連絡を
させていただきます。
2.ご来場
当日、現地(モデルハウス)へ
ご来場ください。
3.ご見学
ご予約時間内(1時間)で
ご自由にご見学ください。
現地スタッフは近くで待機しておりますので、
ご質問・ご相談、詳しいお話を聞きたい方は、
お気軽にお声がけください。
4.終了
アンケートにご協力いただき、
現地解散となります。
お気をつけてお帰り下さいませ。

アクセス
704-8182岡山市東区広谷628-3

よくあるご質問
- Q:事前予約せずに行ってもいいですか?
-
A:恐れ入りますが、事前のご予約をお願いしております。
見学当日はスタッフが鍵を開けますので、必ずご予約のうえお越しください。
- Q:小さな子どもを一緒に連れて行ってもいいですか?
-
A:もちろん大丈夫です。
お子さまとご一緒に安心してご見学いただけます。どうぞご家族皆さまでごゆっくりご覧ください。
- Q:トイレは借りられますか?
-
A:申し訳ございませんが、ご利用いただけません。
モデルハウスのため、トイレのご利用はご遠慮いただいております。あらかじめご了承ください。
- Q:見学会の後に、営業の電話はありますか?
-
A:いいえ、こちらから営業のお電話を差し上げることはございません。
ご興味をお持ちいただいた場合やご相談をご希望の際は、お気軽にご連絡ください。
- Q:土地情報や資金計画について相談したい場合はどうしたらいいですか?
-
A:当社までお気軽にご相談ください。
経験豊富な専門スタッフが、お客様のご希望に合わせて丁寧にご対応いたします。
- Q:ペット連れでも大丈夫ですか?
-
A:誠に申し訳ございませんが、ペットをお連れになってのご見学はご遠慮いただいております。
他のお客様にも快適にご見学いただくため、また衛生管理上の観点からも、ペットのご同伴はご遠慮いただいております。何卒ご理解とご協力をお願いいたします。
